HCII kleine riemtransporteur
Cat:Draaiing van de riemtransporteur
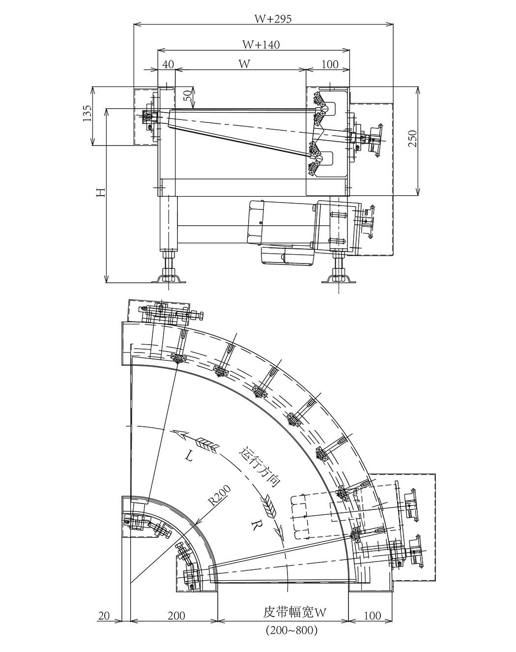
Door de samenwerking tussen het geleidewiel en de geleidrail kan de riem worden getrokken en geleid om te renn...
Geavanceerde structuur, hoogwaardige prestaties, gemakkelijk te gebruiken, hoge betrouwbaarheid en duurzaamheid.
De draaimachine is een veel voorkomende transportapparatuur, voornamelijk gebruikt om materialen over te dragen van de ene bandtransportleiding naar een andere 90 graden of 180 graden omkeerriemriem. Het bestaat uit componenten zoals riemen, frames, aandrijfrollers, omkeerrollen, loaddragende pallets, retourrollen en spanningsapparaten. Het materiaal van de transportband van de riem draaimachine omvat verschillende materialen zoals PVC, PU, PVK, enz. Naast het worden gebruikt voor het overbrengen van gewone materialen, kan het ook voldoen aan het transport van materialen met speciale vereisten zoals olieweerstand, zuur- en alkali-corrosieweerstand en anti-statisch.

Door de samenwerking tussen het geleidewiel en de geleidrail kan de riem worden getrokken en geleid om te renn...
Door de samenwerking tussen het geleidewiel en de geleidrail kan de riem worden getrokken en geleid om te rennen.
Kenmerken: lage kosten, lichte belasting en lage snelheid.
Standaarddimensie
HCII-S
| Riembreedte | 200 | 300 | 400 | 500 |
| Transportbreedte | 520 | 620 | 720 | 820 |
| Hoek | 90 | Motorvermogen | 90W 、 120W 、 200W |
| Hoogte | 270 tot 1100 voet hoog met | Stroom | AC100V (enkele fase) · AC200V (enkele fase) · AC200V (driefasig) |
| Snelheid | Vaste/variabele snelheid | Riem | Polyurethaangordel |
| Vermogen | 10kg/set (wanneer horizontaal verspreide belasting) |
Aangezien de vorm van de bewegende tas vormt, moet u zich terugtrekken op 40% van de overtuigende capaciteitsgegevens.
HCII-M
| Riembreedte | 300 | 400 | 500 | 600 |
| Transportbreedte | 680 | 780 | 880 | 980 |
| Hoek | 90 | Motorvermogen | 200W 、 400W |
| Hoogte | Geef aan, benen zijn optioneel | Stroom | AC200V (driefasen) |
| Snelheid | Vaste snelheid | Riem | Polyurethaangordel |
| Vermogen | 40kg/set (wanneer horizontaal verspreide belasting) |
Aangezien de vorm van de bewegende tas vormt, moet u zich terugtrekken op 40% van de overtuigende capaciteitsgegevens.
HCII-S-riemsnelheid
| Verhouding | Snelle nr. | Vaste snelheid 50/60 (Hz) (m/min) | Snelheid nee | Variabele snelheid 50/60 (Hzx (m/min) |
| 1/180 | T1 | 16./1.9 | H1 | 0.11 ~ 2.1 |
| 1/2050 | T2 | 1.8/2.2 | H2 | 0,13 ~ 2,5 |
| 1/2020 | T3 | 2.3/2.8 | H3 | 0,16 ~ 3.1 |
| 1/90 | T4 | 3.1/3.7 | H4 | 0.21-4.2 |
| 1/75 | T5 | 3.8/4.5 | H5 | 0,25 ~ 5.0 |
| 1/60 | T6 | 4.7/5.6 | H6 | 0.31 ~ 6.2 |
| 1/50 | T7 | 5.6/6.7 | H7 | 0,38 ~ 7,5 |
| 1/36 | T8 | 7.8/9.4 | H8 | 0,52-10.4 |
| 1/30 | T9 | 9.3/11.2 | H9 | 0,63 ~ 12,5 |
| 1/25 | T10 | 11.3/13.5 | H10 | 0,75 ~ 15.0 |
| 1/18 | T11 | 15.6/18.7 | H11 | 1.04 ~ 20.8 |
| 1/15 | T12 | 18.8/22.5 | H12 | 1.25 ~ 25.0 |
| 1/12.5 | T13 | 22.5/27.0 | H13 | 1.50 ~ 30.0 |
HCII-M riemsnelheid
| Verhouding | Snelle nr. | Vaste snelheid 50/60 (Hz) (m/min) |
| 1/2020 | T1 | 15/18 |
| 1/90 | T2 | 20/24 |
Snelheidberekening van vaste snelheid: roteersnelheid 1500/1800 tpm (50/60Hz), rijrol ф82.3, rijefficiëntie: 95%
Snelheidsberekening van variabele snelheid: roteersnelheid 2000 tpm (50; 60Hz), rijrol ф82.3, rijefficiëntie: 95%
Tekening

Door de samenwerking tussen het geleidewiel en de geleidebalk wordt de riem getrokken en geleid om te rennen. ...
Door de samenwerking tussen het geleidewiel en de geleidebalk wordt de riem getrokken en geleid om te rennen.
Kenmerken: lage ruis, hoge snelheid en zelfs riemkracht.
Standaarddimensie
| Riembreedte | 200 | 300 | 400 | 500 | 600 | 700 | 800 |
| Transportbreedte | 520 | 620 | 720 | 820 | 920 | 1020 | 1120 |
| Hoek | 90 | Motorvermogen | 200W 、 370W 、 750W |
| Hoogte | 380 tot 1100 voet hoog met | Stroom | A (AC110V enkele fase) B (AC200V enkele fase) C (AC200V/380V driefasige) |
| Snelheid | Vaste snelheid | Riem | Polyurethaangordel |
| Vermogen | 100 kg/set (wanneer horizontaal verspreide belasting) |
Aangezien de vorm van de bewegende tas vormt, moet u zich terugtrekken op 40% van de overtuigende capaciteitsgegevens.
Riemsnelheid
| Verhouding | Snelle nr. | Vaste snelheid 50/60 (Hz) (m/min) | Snelle nr. | Variabele snelheid 50Hz (m/min) |
| 1/180 | T1 | 1.6/1.9 | H1 | 0,09-1.7 |
| 1/2050 | T2 | 1.9/2.3 | H2 | 0.1-2.1 |
| 1/2020 | T3 | 2.4/2.9 | H3 | 0.13-2.6 |
| 1/90 | T4 | 3.2/3.8 | H4 | 0.17-3.5 |
| 1/75 | T5 | 3.8/4.6 | H5 | 0.2-4.2 |
| 1/60 | T6 | 4.9/5.8 | H6 | 0.25-5.1 |
| 1/50 | T7 | 5.8/6.9 | H7 | 0.3-6.2 |
| 1/36 | T8 | 8/9.5 | H8 | 0,4 ~ 8,6 |
| 1/30 | T9 | 9.5/11.5 | H9 | 0,5-10,4 |
| 1/25 | T10 | 11.5/13.7 | H10 | 0.6-12.4 |
| 1/18 | T11 | 15.9/19 | H11 | 0.9-17.3 |
| 1/15 | T12 | 19.3/22.3 | H12 | 1 ~ 20.6 |
| 1/12.5 | T13 | 23/27.4 | H13 | 1.2-24.8 |
| 1/7.5 | T14 | 38.3/45.8 | H14 | 2.1-41.4 |
| 1/5 | T15 | 57.5/68.6 | H15 | 3.1-62 |
| 1/3.6 | T16 | 79.9/95.4 | H16 | 4.3-86.1 |
| 1/3 | T17 | 95.8/114.4 | H17 | 5.2-103.4 |
Snelheidberekening van vaste snelheid: roteersnelheid 1500/1800 tpm (50/60Hz), rijrol ф82.3, rijefficiëntie: 95%
Snelheidsberekening van variabele snelheid: roteersnelheid 2000 tpm (50; 60Hz), rijrol ф82.3, rijefficiëntie: 95%
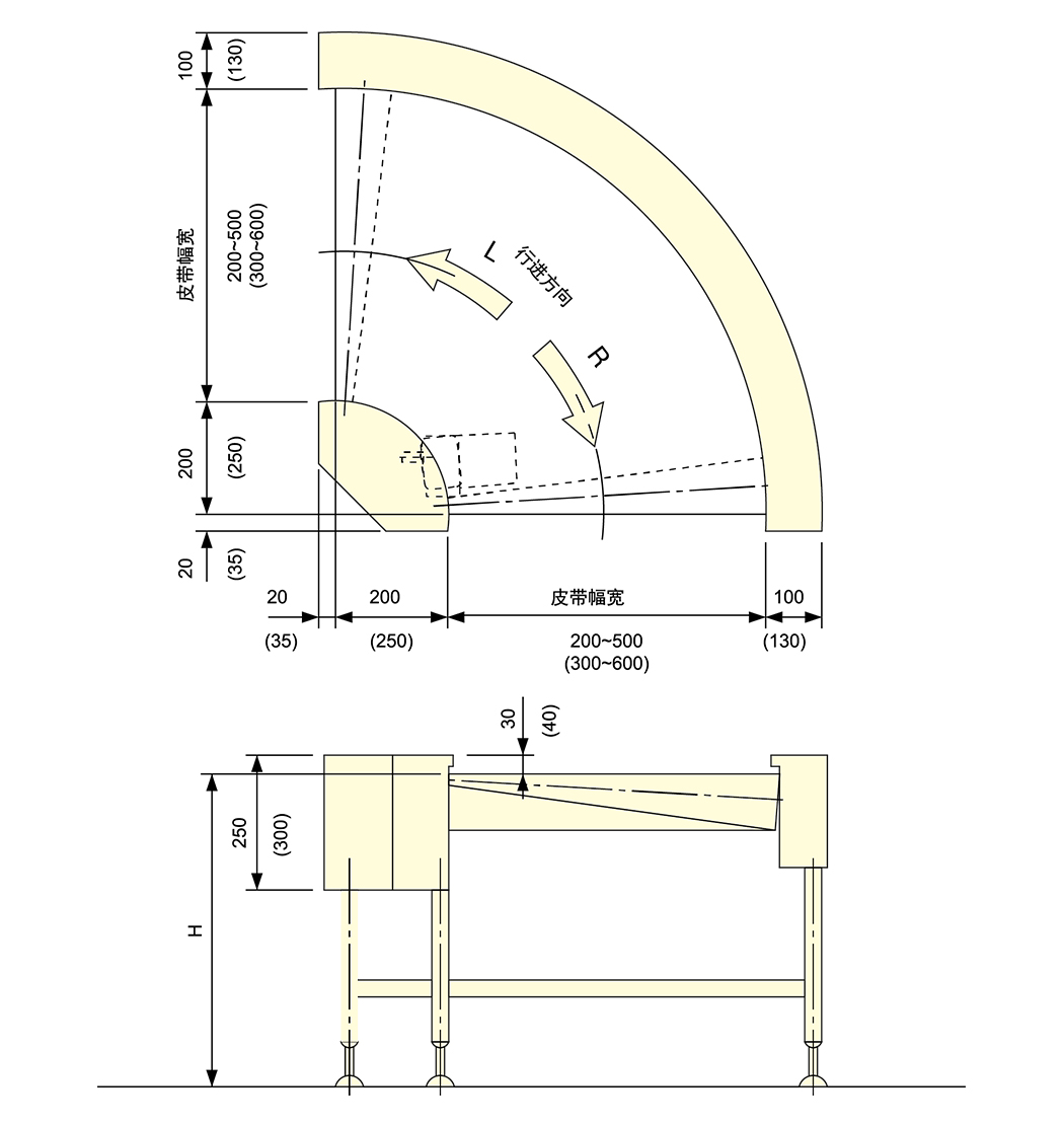
Tekening

Door de samenwerking tussen de ketting en het geleidewiel kan de riem worden getrokken en geleid. Kenmerken...
Door de samenwerking tussen de ketting en het geleidewiel kan de riem worden getrokken en geleid.
Kenmerken: zware belasting en snelle snelheid.
Standaarddimensie
| Riembreedte | 400 | 600 | 800 | 1000 | 1200 | 1400 | 1600 | 1800 |
| Transportbreedte | 525 | 725 | 925 | 1125 | 1325 | 1525 | 1725 | 1925 |
| Hoek | 90 | Motorvermogen | 370W 、 750W 、 1,1 kW 、 1,5 kW 、 2.2KW |
| Hoogte | 550 tot 2000 voet hoog met | Stroom | A (AC110V enkele fase) B (AC200V enkele fase) C (AC200V/380V driefasige) |
| Snelheid | Vaste snelheid | Riem | Poly (n-vinylcarbazol) |
| Vermogen | 200 kg/set (wanneer horizontaal verspreide belasting) |
Aangezien de vorm van de bewegende tas vormt, moet u zich terugtrekken op 40% van de overtuigende capaciteitsgegevens.
Riemsnelheid
| Verhouding | Snelle nr. | Vaste snelheid 50/60 (Hz) (m/min | Snelle nr. | Variabele snelheid 50Hz (m/min) |
| 1/2040 | T1 | 2.6/3.0 | H1 | 1.0-2.6 |
| 1/2020 | T2 | 2.8/3.5 | H2 | 1.1-2.8 |
| 1/2000 | T3 | 3.5/4.2 | H3 | 1.4 ~ 3.5 |
| 1/90 | T4 | 4.0/6.7 | H4 | 1.6 ~ 4.0 |
| 1/80 | T5 | 4.4/5.4 | H5 | 1.8-4.4 |
| 1/70 | T6 | 4.9/5.8 | H6 | 2.0-4.9 |
| 1/60 | T7 | 5.8/7.0 | H7 | 2.3-5.8 |
| 1/50 | T8 | 7.0/8.4 | H8 | 2.8 ~ 7.0 |
| 1/45 | T9 | 7.7/9.3 | H9 | 3.1 ~ 7.7 |
| 1/40 | T10 | 8.6/10.5 | H10 | 3.4 ~ 8.6 |
| 1/30 | T11 | 11.6/14.0 | H11 | 4.7 ~ 11.6 |
| 1/25 | T12 | 14.0/16.8 | H12 | 5.6 ~ 14.0 |
| 1/20 | T13 | 17.5/21.0 | H13 | 7.0-17.5 |
| 1/15 | T14 | 23.3/28.0 | H14 | 9.3 ~ 23.3 |
| 1/10 | T15 | 35.0/41.9 | H15 | 14.0-35.0 |
| 1/5 | T16 | 70.0/83.8 | H16 | 28.0-70.1 |
Snelheidberekening van vaste snelheid: roteersnelheid 1500/1800 tpm (50/60Hz), rijrol ф82.3, rijefficiëntie: 95%
Snelheidsberekening van variabele snelheid: roteersnelheid 2000 tpm (50; 60Hz), rijrol ф82.3, rijefficiëntie: 95%
Tekening
Waarom onderhoud van rollenbanen een directe invloed heeft op de levensduur van het systeem ...
Lees meerWat maakt een rollenbaan echt zwaar? Een heavy-duty rollenbaan wordt niet gedefinieerd door m...
Lees meerWat zijn rollenbanen en waarom is het type belangrijk? Rollenbanen zijn materiaalbeh...
Lees meerWaarom rollenbanen de ruggengraat van materiaaltransport blijven Rollenbanen verbete...
Lees meerVakmanschap naar de toekomst brengen.
No.60, Zhenhu North Road, Hudai Town, Binhu District, Wuxi 214100, China







